00件
最近見た物件
00件
検討リスト
宇部市の不動産|合同会社ライフクエスト > (土地(売買))地域から探す > 宇部市 > プライム野黒目 > 5号地
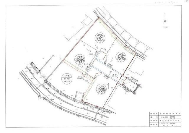
こだわりで選びたい方におすすめ。宇部市エリアで住まいをお探しなら「プライム野黒目」。アップダウンの少ない平坦地です。駅まで徒歩15分でアクセス可能です。土地面積は290.52㎡(公簿)で一押しです。地元の情報網を活かし、タイムリーな不動産情報をお客様へお届けしております。あなたの夢を叶える不動産探しは、ぜひ当社にお任せください。











(※元利均等方式 金利5.00%まで ※返済年数5~50年まで入力できます)
(※ボーナスは年2回で計算しています。1000万円まで入力できます)
(※物件購入時、その他諸費用が発生する場合がございます)
| 所在地 | 山口県宇部市大字西岐波 | ||
|---|---|---|---|
| 交通 | |||
| 価格 | 960万円 | ||
| 土地の敷金/保証金 | -/- | 借地料/借地期間 | -/- |
| 土地面積(坪数) | 290.52㎡(87.88坪) | 坪単価 | 10.92万円 |
| 私道負担面積/セットバック | -/無 | 高圧線下面積 | - |
| 傾斜地部分面積 | - | 路地状敷地 | - |
| 土地権利 | 所有権 | 接道状況 | 一方(北東 公道 5.0m 間口 5.0m) |
| 都市計画 | 非線引区域 | 用途地域 | 第一種中高層住居専用 |
| 建築条件 | - | 地目/地勢 | 宅地/平坦 |
| 建ぺい率 | 60% | 容積率 | 200% |
| 総区画数 | - | 販売区画数 | - |
| 国土法届出要否 | 不要 | その他の法令上の制限 | - |
| 取引態様 | 一般媒介 | 現況 | 更地 |
| 引渡時期 | 即時 | 引渡条件 | - |
| 最適用途 | - | ||
| 物件番号 | 92235666 | 取引条件の有効期限 | 2026年01月26日 |
| 設備条件 |
|
||
| 備考 | 立地する第一種中高層住居専用地域では、一定の制限内で教育施設に加え、医療福祉施設、さらに小規模な店舗や飲食店などの建設が認められている地域です。売地をお探しの方におすすめの土地です。駅まで徒歩15分の場所に立地しています。当社スタッフは不動産の知識だけではなく、地域の生活情報にも熟知しているベテラン揃いです。不動産探しにはぜひ地元密着の当社にお任せください。ご連絡をお待ちしております。 | ||
| 取扱会社 |
|
||
| QRコード |
このQRコードを読み取ることで、スマホでも物件情報を確認できます。 |
||
※地図上に表示される物件の位置は付近住所に所在することを表すものであり、実際の物件所在地とは異なる場合がございます。
プライム野黒目に関するこだわり条件から探す
宇部市以外の市区町村から探す